Nova Enginera

Våre prosjekter

Under følger noen eksempler der vi har bistått med prosjektering, konsultering, byggetegninger eller design. Mer informasjon under hvert prosjekt. Første nøkkelferdige Nova-passivhus i leveranse 2026-27.
Prosjektering og konsultering

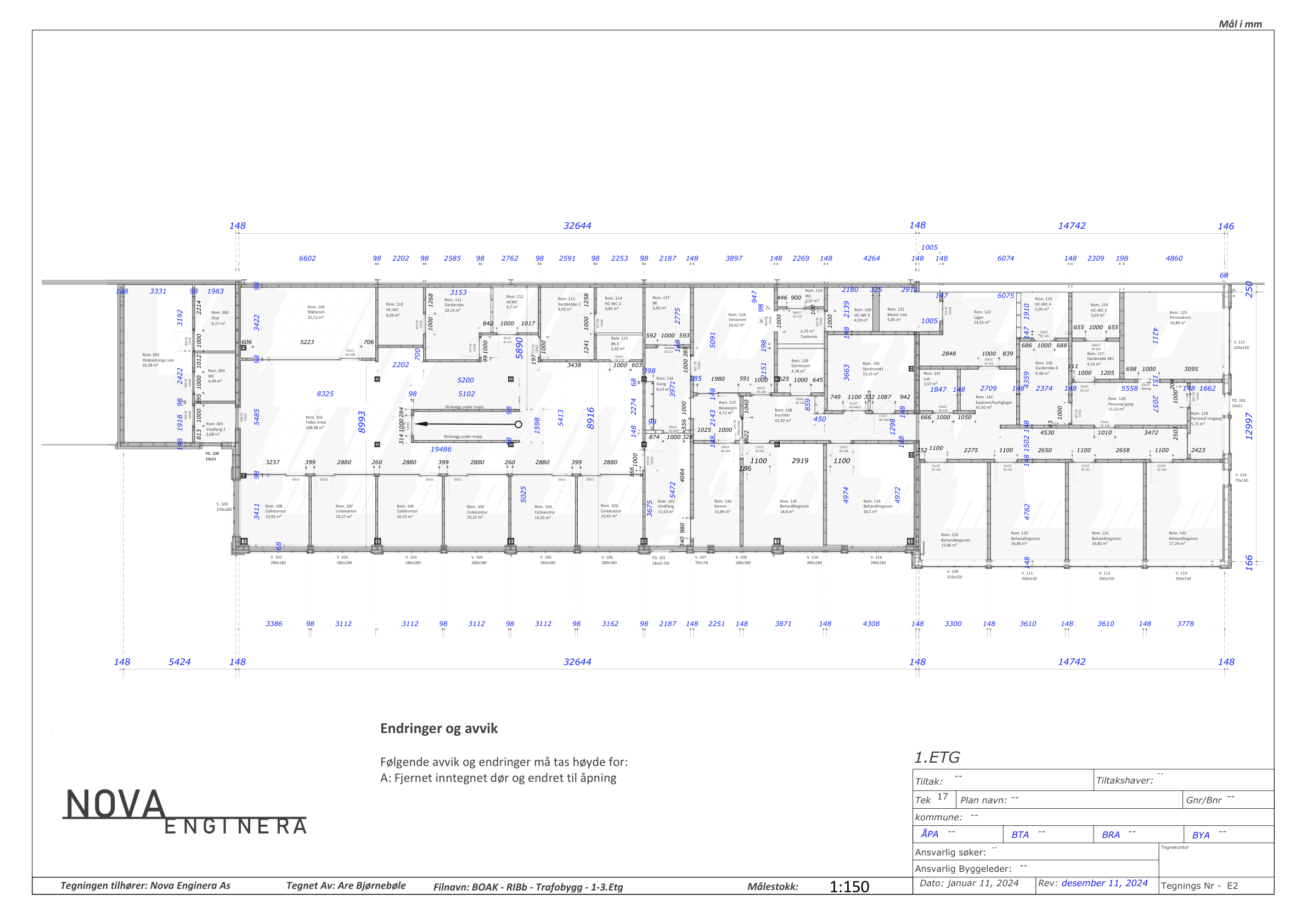
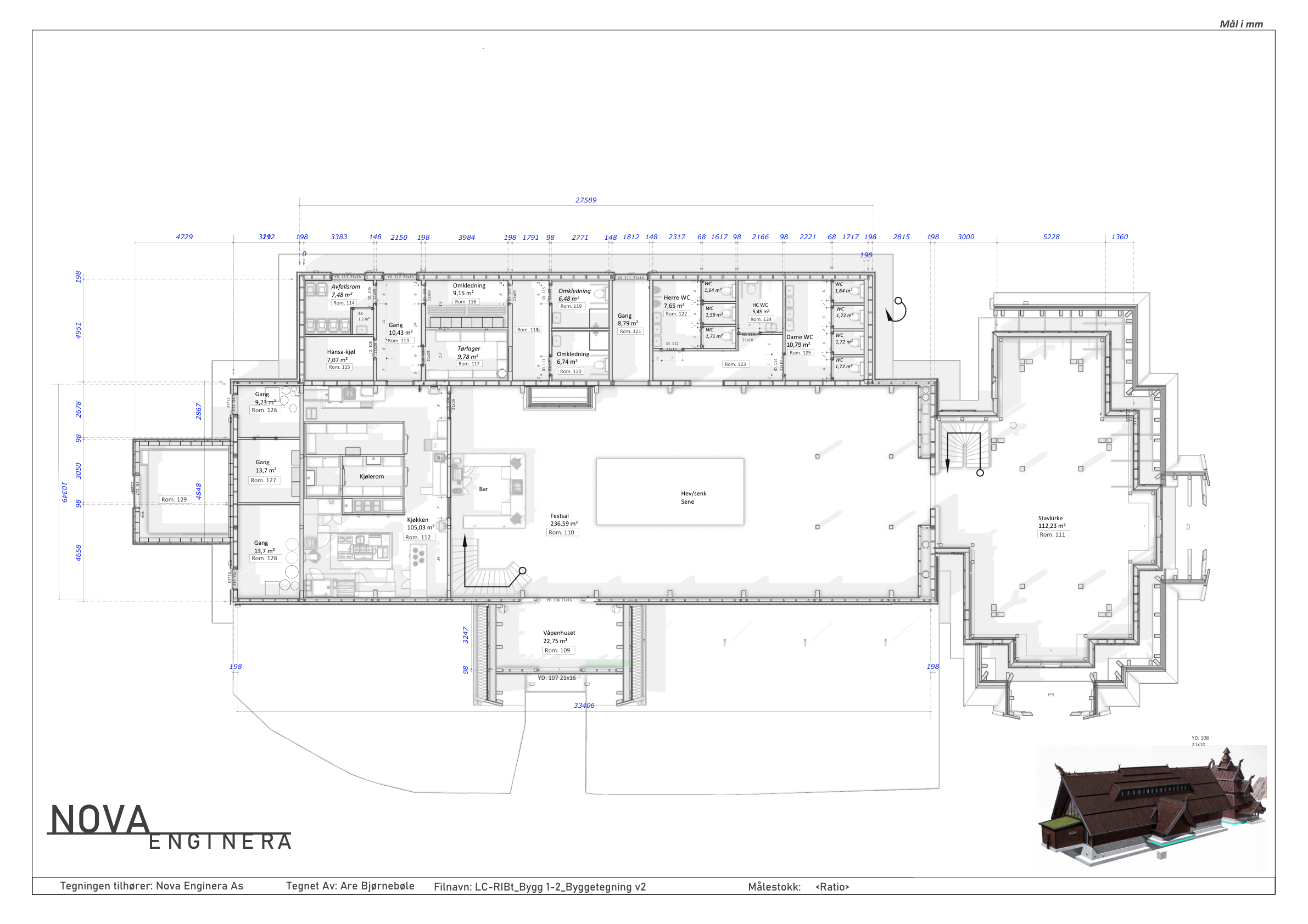
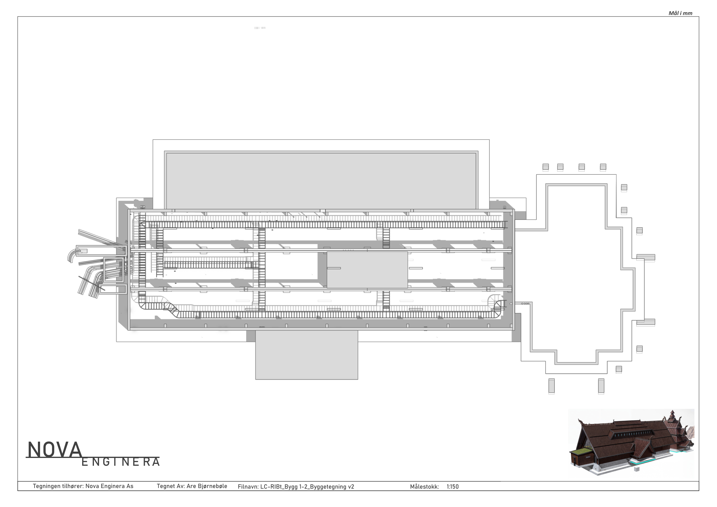
Trafobygget, Næringsbygg, Odda

3-etasjes næringsbygg med stålkonstruksjon og trekledning. Bygget er tegnet av Studio Dibs AS. Vi har bidratt med etasjeplaner, byggetegninger, stålkonstruksjon, balkonger og brannplan.

Etasjer3 etasjer
TypeNæringsbygg
StedOdda
KonstruksjonStål + tre
Næringsbygg Stålkonstruksjon Byggetegninger
Byggetegning, Trafobygget Odda
Byggetegning
1. etasje, Trafobygget Odda
1. etasje
2. etasje, Trafobygget Odda
2. etasje
Stålkonstruksjon, Trafobygget Odda
Stålkonstruksjon
Design og konseptskisser + 3D-visualisering

Elvehuset, Leilighetsbygg, Odda

Planlagt konseptprosjekt: leilighetsbygg ved elven i Odda med 24 leiligheter. Takterrasse med basseng, massasjebad, badstue, utekjøkken og festplass. Bygget er utformet med fokus på maksimal strømsparing.

Leiligheter24 stk
TypeLeilighetsbygg
StedOdda
TakterrasseBasseng + badstue
Leilighetsbygg Konseptskisser Takterrasse 3D-visualisering
Konseptskisse fasade, Elvehuset Odda
Konseptskisse fasade
Takterrasse med basseng, Elvehuset Odda
Takterrasse med basseng
Takterrasse lounge, Elvehuset Odda
Takterrasse lounge
Plantegning og takterrasse, Elvehuset Odda
Plantegning og takterrasse
Design og søknadstegning

Enebolig med kårbolig

Enebolig med kårbolig og underjordisk garasje, tegnet for kunde.

TypeEnebolig + kårbolig
GarasjeUnderjordisk
LeveranseTegnet for kunde
Enebolig Kårbolig Underjordisk garasje 3D-visualisering
Render 1, Enebolig med kårbolig
Render 1
Render 2, Enebolig med kårbolig
Render 2
Render 3, Enebolig med kårbolig
Render 3
Render 4, Enebolig med kårbolig
Render 4
Render 5, Enebolig med kårbolig
Render 5
Søknadstegninger + 3D-visualisering

Tilbygg enebolig

Tilbygg og påbygg på eksisterende enebolig. Mørk trekledning, carport og terrasse. Søknadstegninger med 3D-visualisering for byggherre.

OmfangTilbygg + påbygg
TypeEnebolig
År2026
KledningMørk kledning
Tilbygg Søknadstegninger 3D-visualisering
Fasade med carport, tilbygg enebolig
Fasade med carport
Bakside med balkong, tilbygg enebolig
Bakside med balkong
Gavl med inngang, tilbygg enebolig
Gavl med inngang

Har du et prosjekt?

Kontakt oss for tegninger, vi leverer søknadspakker, arbeidstegninger og 3D-visualisering for eneboliger og næringsbygg over hele Norge.